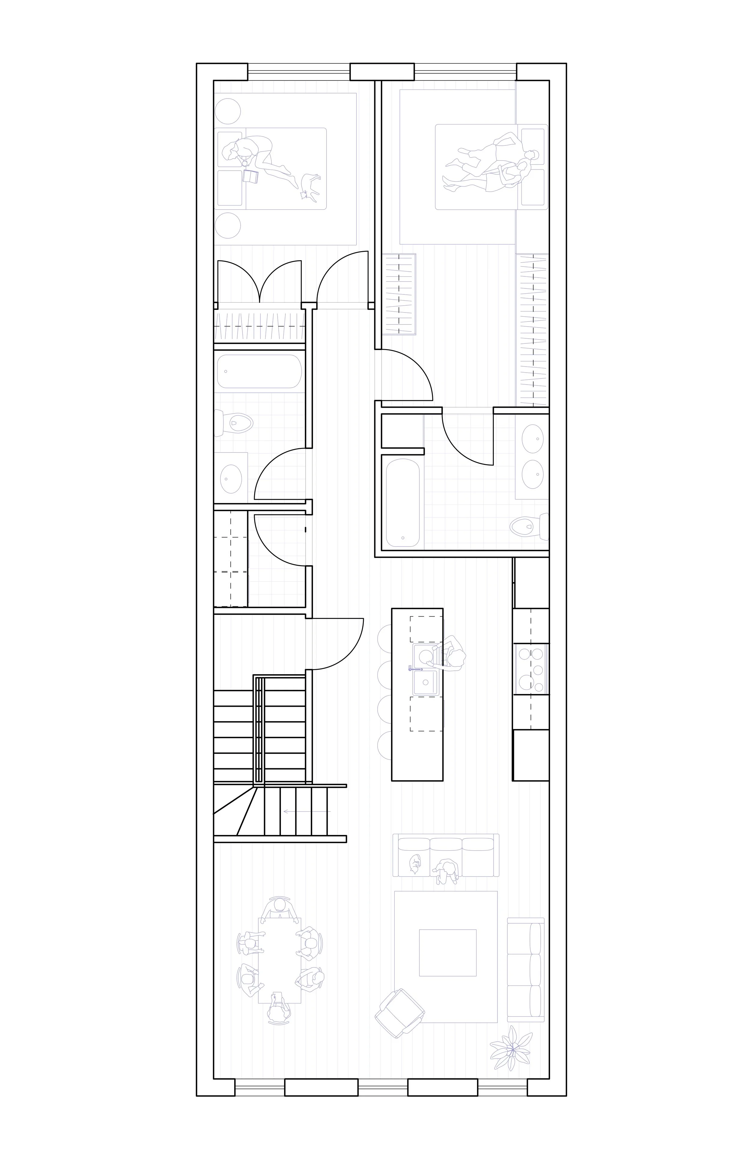
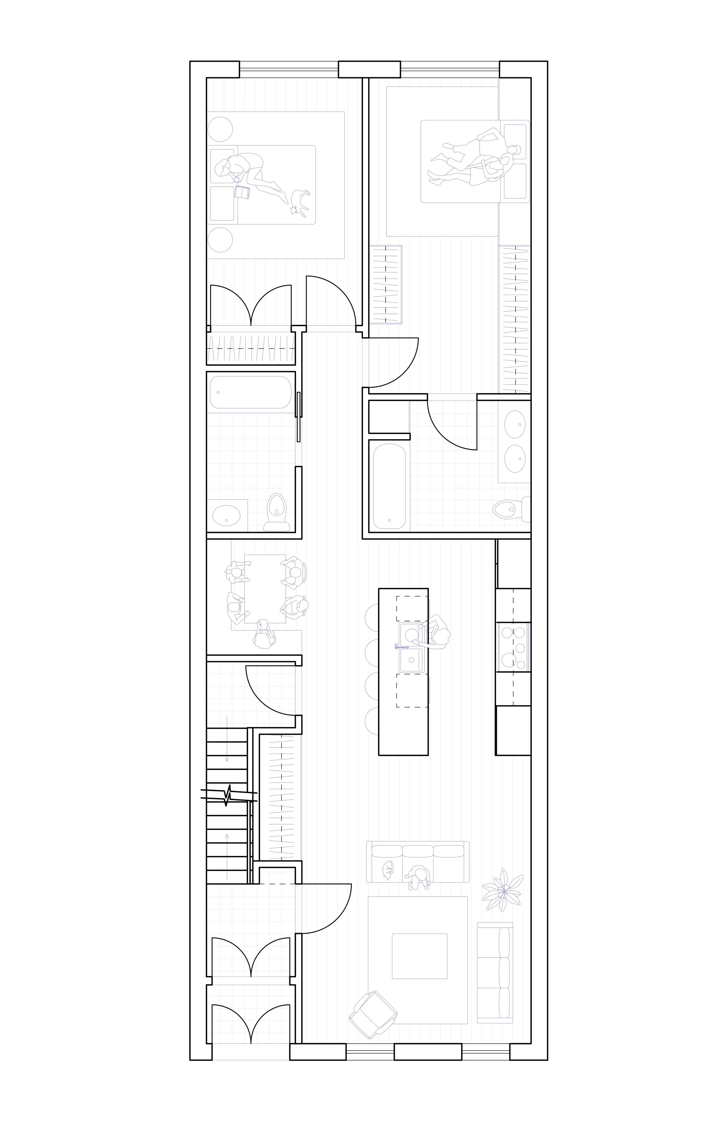
Saint Marks

At Saint Marks, material becomes the driver of experience. This three family development explores haptic surfaces, subtle tonal variation, and generous proportions to create homes that feel tactile and intimate. The result is a collection of residences that are quiet, comfortable, and rooted in everyday living.

Saint Marks is in construction!

Design + Construction Management
KDW

Contractor
Unicorn Development

Client
Unicorn Development

Year
2026-

Previous
Previous

Boothbay

Next
Next

West 122nd