West 122nd

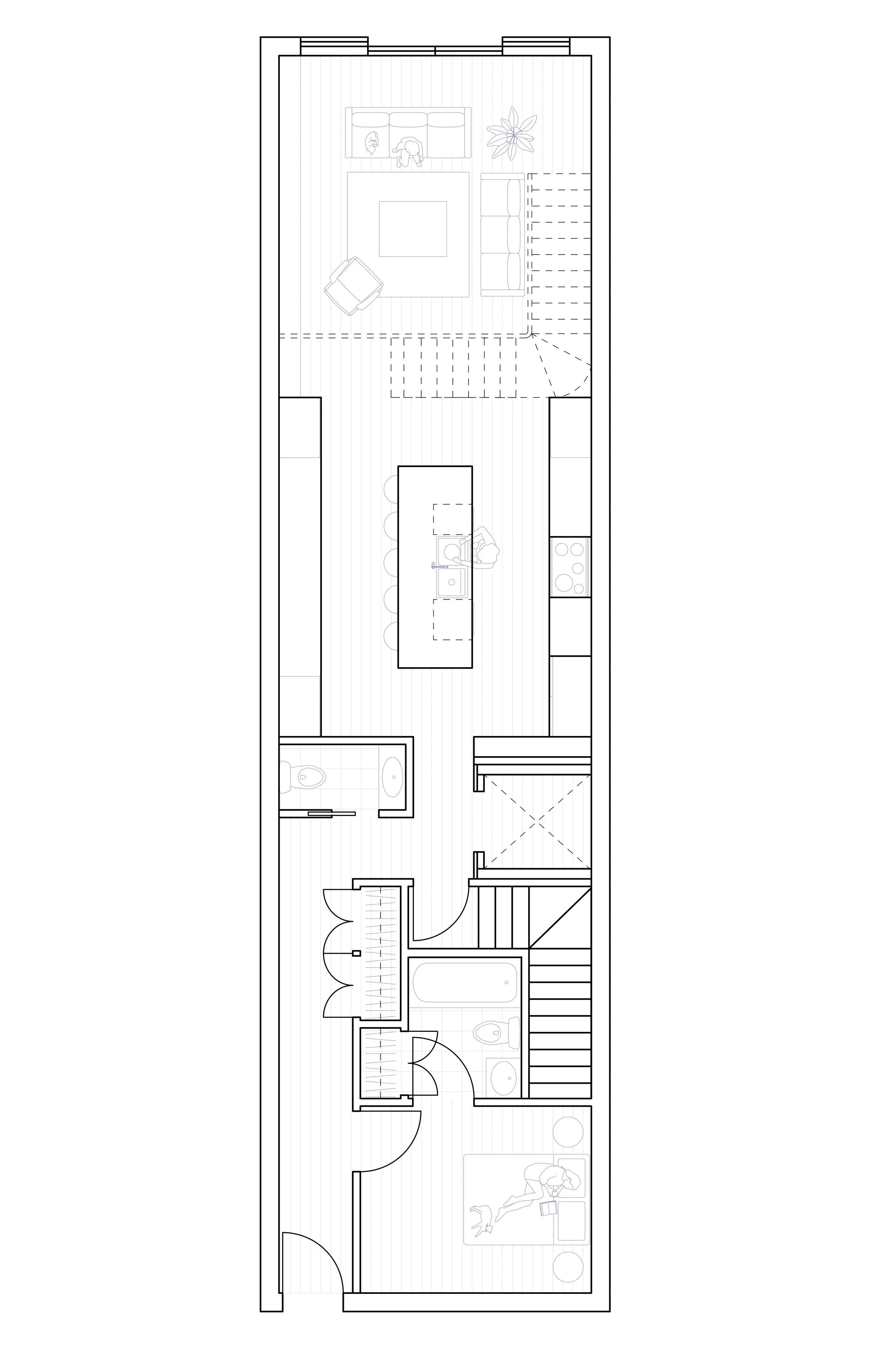
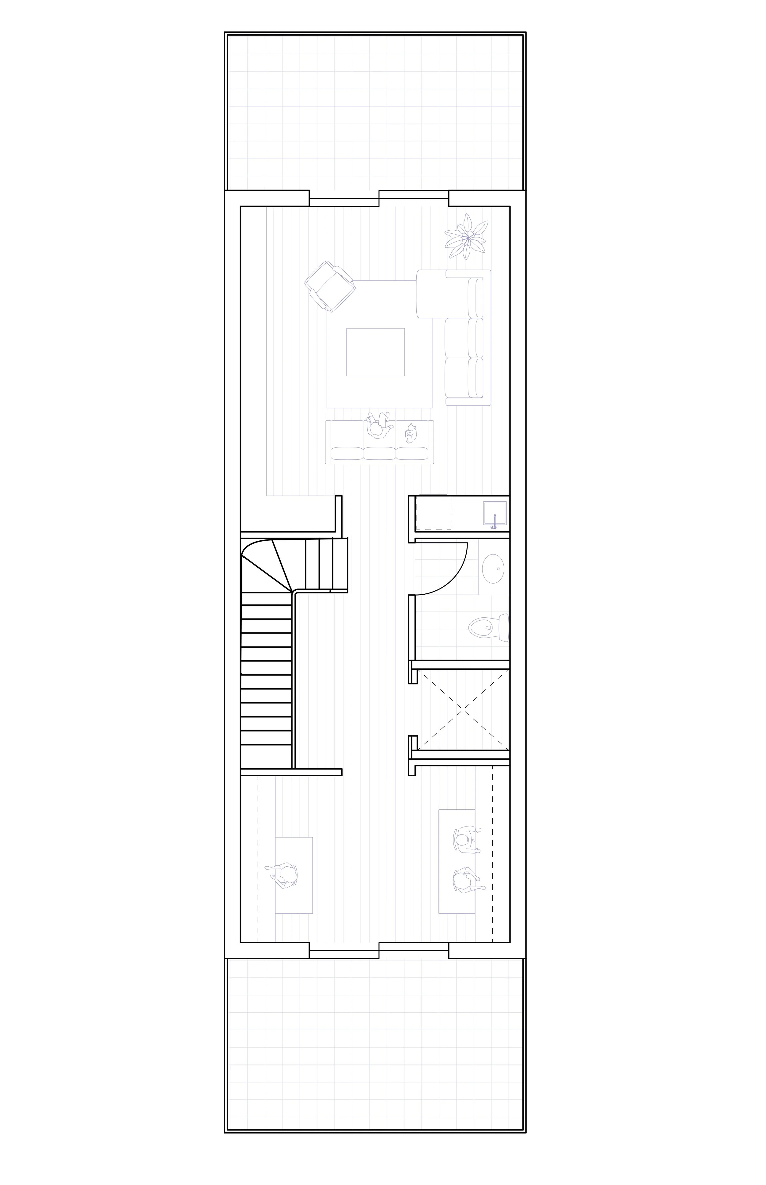
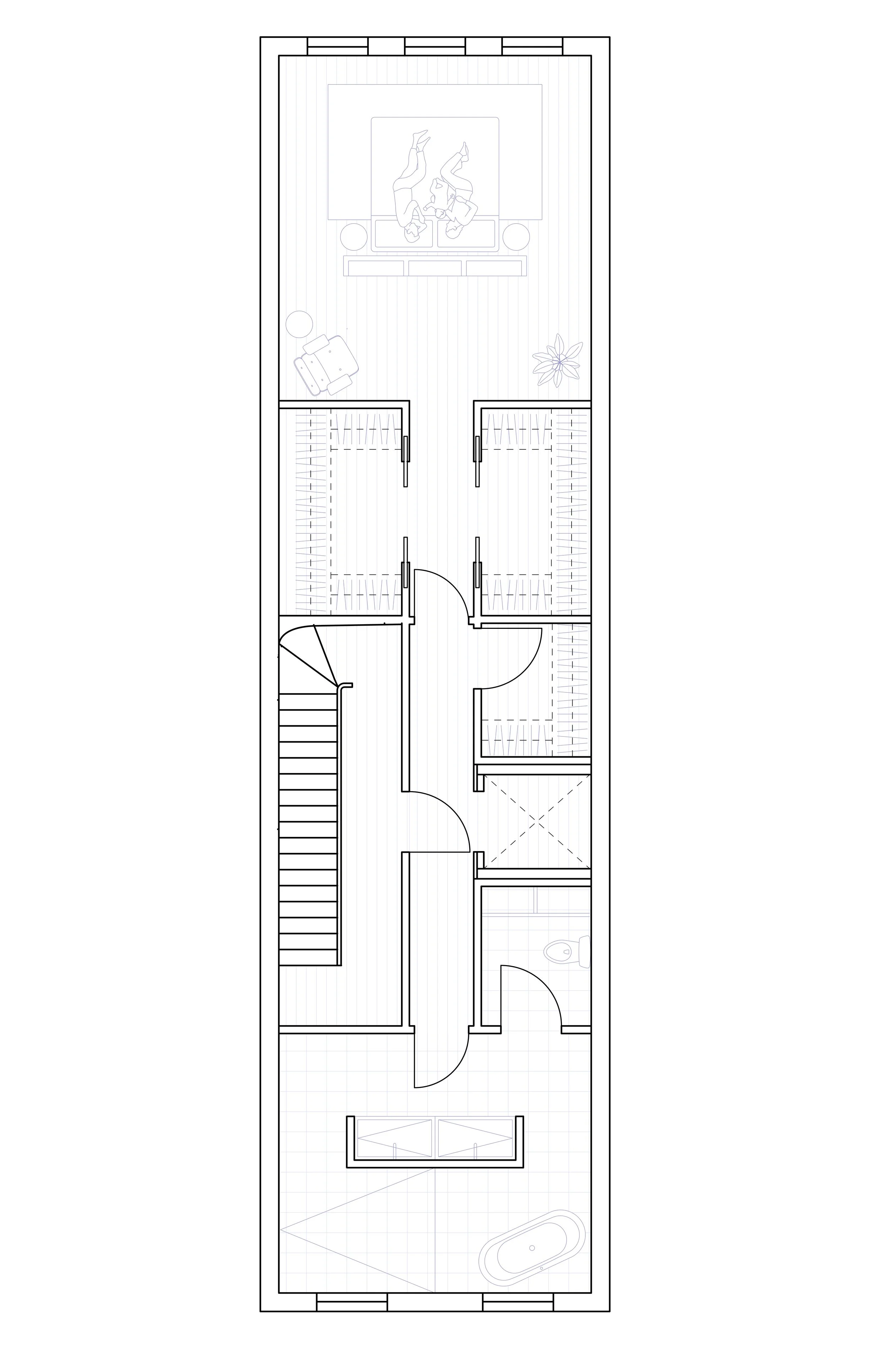
Designed within the Mount Morris Park Historic District Extension, this townhouse explores how new construction can sit comfortably within a historic streetscape. The facade draws from the block’s arched openings, strong vertical rhythms, and masonry depth while expressing a contemporary approach to brick and proportion. Construction will begin in 2026.

Design + Construction Management
KDW

Client
Private Development

Year
2026-

Previous
Previous

Saint Marks